Tweelaagse uitbouw woonhuis

Locatie: Driebergen
Opdrachtgever: Particulier
Jaar: 2021
Status: Opgeleverd
Tweelaagse uitbouw woonhuis project foto

Het plan

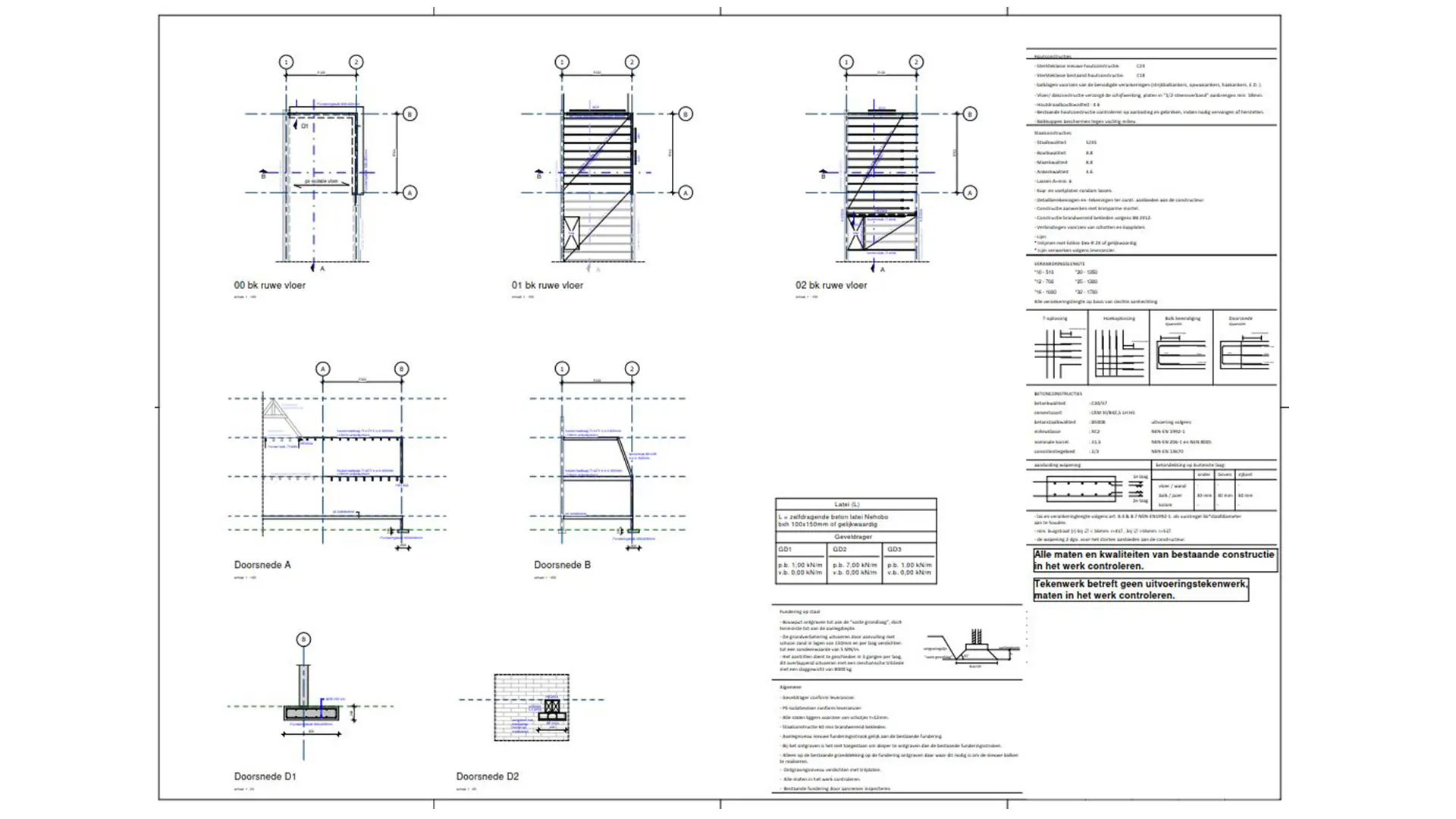
Constructief ontwerp